M 热烈庆祝河北保定乐凯公司与西门机电首度合作
Semem
ʱ 11/10/27
昨天,湖南西门机电迎来了与河北保定乐凯公司的首度合作,乐凯公司经过多方的考察及咨询决定于我司采购HQS-250-50。此次合作如此顺利主要是因为我司的产品能够解决乐凯特殊工作环境中噪音大、混合不均匀、振动、熔化锅内热水量需求小的问题,汽水混合器不加热或产生“突突突”噪音
而乐凯所采购的HQS汽水混合加热器是一种装设于管道上直接式加热设备,具有热效率高、噪声低、安装简单、不占空间等优势,非常符合乐凯的选型标准。
此次合作亦充分证明了西门机电在市场的影响及专业技术的水准,西门人也将继续不断完善专业技术及服务来回馈全国各地的新老朋友。
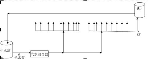
河北保定乐凯公司汽水混合器使用流程:
![]() 1、热水罐10吨;热水泵KQWR65-160,流量50吨/小时,扬程32米;以上设备位于一楼;
2、回水40--65度,加热到85度,主管道供到二楼,二楼20个小泵将热水供到三楼熔化锅夹套,熔化锅根据工艺需要开大或关小热水量;
3、以上只是示意图,熔化锅为升温、恒温、降温三个过程,升温用85度热水,冷水作为调节;恒温由冷热水调节;降温用冷水;以上过程为仪表自动控制。
|





